Оформление дипломной работы
Грамотное оформление дипломной работы – одно из главных требований при ее сдаче. Ведь госкомиссия не будет читать весь текст, а только пролистает. И сначала обратит внимание именно на то, как выглядит проект и насколько он соответствует всем правилам.
Конечно, в этом процессе есть определенные сложности, так как ВКР следует писать только по ГОСТу. Чтобы проблем не возникло, стоит придерживаться стандартных правил.
Требования к оформлению дипломной работы
Сегодня для подготовки дипломной работы следует руководствоваться ГОСТом 7.32-2001. Это очень объемный документ, описывающий правила оформления, поэтому не каждый студент сможет прочитать его до конца. Однако ознакомления с основными выдержками вполне достаточно для того, чтобы все сделать правильно.
Помимо него, не лишними станут следующие государственные стандарты:
-
7.1-2003 – для верного оформления библиографии и описания;
- Купить дипломную работу
7.9-95 – представляет собой стандарт по издательскому делу;
-
7.12-93 – кроме общих моментов, здесь также прописаны правила, как сокращать слова на русском языке;
-
9327-60 – он касается текстов и таких материалов, как изображения, таблицы, диаграммы и прочее.
Во всех этих документах можно подробно узнать о том, как оформить ВКР. А это в свою очередь поможет избежать доработок и замечаний преподавателя.
Объем дипломной работы
Сколько же страниц должно быть в проекте? Большинство университетов устанавливает четкое количество. При этом очень многое зависит от факультета и будущей специальности учащегося. Минимальный объем основного текста без учета приложений – 60 листов. Обычно подсчет страниц ведется от содержания до списка литературы. Что же касается максимально допустимого размера диплома, то эти данные лучше брать на кафедре.
Как оформить дипломную работу в Microsoft Word
Сегодня все письменные задания студенты сдают в печатном варианте, рукописный практически не используется. Односторонняя печать диплома А4 выполняется в «Ворд». Иногда допустим формат бумаги А3, но он чаще всего требуется в случае объемных таблиц и больших иллюстраций. Книжная ориентация листа, горизонтальная допустима только в приложениях.
Другие важные моменты:
-
Введение, разделы и другие элементы в структуре всегда размещаются на новом листе. Это же касается и параграфов.
-
Не разрешается выделять главы. Подпункты обозначают только полужирным шрифтом.
-
Номера страниц располагаются внизу в центре. Пишутся арабскими цифрами предпочтительно 11 пт. Первая страница – это титульный лист, однако нумерация не ставится. Также не нумеруются содержание и список библиографии.
-
Перенос строк выполняется автоматически. Если вам требуется сделать это самостоятельно, нельзя пользоваться кнопками «Tab» или «пробел».
-
Выравнивание всего текста строго по ширине.
-
Абзацный отступ от 1,25 до 1,5 см.

Какой шрифт должен быть в дипломной работе
Особо строго комиссия относится к правильному соблюдению этого параметра. Согласно ГОСТам, написание выполняется гарнитурой Times New Roman. Размер, используемый для текста – 14 пт, заголовки 1-го уровня выполняются 16 кеглем. В сносках и подписях к рисункам разрешается применять меньший кегль – до 10 пт. Цвет – только черный.
Межстрочный интервал
Предусмотрено соблюдение полуторного интервала. Наименование раздела от параграфа отделяется 8 мм, то есть применяется двойной интервал.
Помимо этого, обязательны поля. С учетом того, что брошюровка диплома делается слева, здесь нужен отступ в 2 см. Верхнее и нижнее поле также делаются по 2 см, а правое – строго 1 см.
Как делать сноски в дипломной работе: пример
При подготовке проекта практически постоянно требуется указывать источники информации, это касается и цитат. Для этого используются ссылки и сноски, однако эти термины не являются полными синонимами. По сути это 2 разновидности записи, содержащей важные сведения об упоминаемом издании.
Сноска должна находиться внизу листа под всем текстом, ставится горизонтальная линия с целью его отделения. Это выглядит так:

Ссылки же указывают исключительно на первоисточник, и оформление выглядит в дипломной работе следующим образом:

Узнать об оформлении сносок в дипломной работе можно в ГОСТ 7.0.5-2008:
-
Шрифт соответствует тому, что использован во всем исследовании, а именно Times New Roman.
-
Его размер должен на 2-4 пт быть меньше (как правило, сноски пишутся 10 или 12 кеглем).
-
Одинарный междустрочный интервал, абзацный отступ не требуется.
Все эти манипуляции делаются в Word через окно «Вставка». Сноски нумеруют в пределах листа, но возможна также сквозная нумерация.
Символ ставится перед знаками препинания, к примеру, «в исследовании1.». Если же он сочетается с многоточием или другим знаком (восклицательный или вопросительный), следует делать так:
-
не показывать!*;
-
глава…2.
На одном листе работы может быть не более трех цифр или звездочек.
Как оформлять цитаты в дипломной работе
Цитирование позволяет продемонстрировать теоретическую подкованность учащегося, хорошее понимание темы и умение приводить веские аргументы. Объем в среднем до 15-20 % от всей ВКР. Однако оно требует и грамотного оформления для того, что пройти проверку на оригинальность.
Включение цитат должно быть оправданным, не вызывающим вопросов или сомнений у преподавателя. Выдержки уместны в том случае, если:
-
ими подкрепляются факты, свидетельствующие о правоте автора;
- Стоимость дипломной работы
противопоставляются мнения студента-дипломника и предыдущих исследователей данной темы;
-
авторитетным мнением нужно подтвердить рассуждения пишущего;
-
происходит анализ отрывков из произведений.
Чаще всего в дипломной можно встретить два вида цитирования: прямое и косвенное. Последнее представляет собой свободный пересказ источника, смысл должен быть приближен к нему. Прямые же полностью сохраняют содержание и грамматику, позволяют в деталях передать сказанное.

При всех видах цитирования необходимо обязательно ссылаться на первоисточник. В первом случае цитата кавычится, а за ней в квадратных скобках указываются сведения об издании.
Другие важные моменты:
-
Размер отрывков не должен превышать ⅓ листа.
-
На одной странице размещают не более трех дословных выдержек.
-
Одну прямую цитату не размещают за другой без обобщений или выводов.
-
Не стоит ссылаться на материалы в сети Интернет, если они существуют в печатном варианте.
-
Цитирование учебников, справочников и другой базой литературы допустимо только во введении в небольшом количестве.
-
Графические материалы и иные подобные данные из других исследований также оформляются как цитаты.

Как оформить рисунки в дипломной работе
Согласно ГОСТ 7.32 к иллюстрированным материалам обязательно требуются ссылки на первоисточник. Они могут оформляться после текста.
Все изображения нумеруются арабскими цифрами и включают в название номер раздела. Например, «Рисунок 2.3» – где 2 означает главу, в которой размещен рисунок, а 3 – его номер по счету.
Выравнивание подписи – по центру строки. Точка после наименования изображения не ставится. Само слово «Рисунок» пишется полностью без сокращения до «рис.».

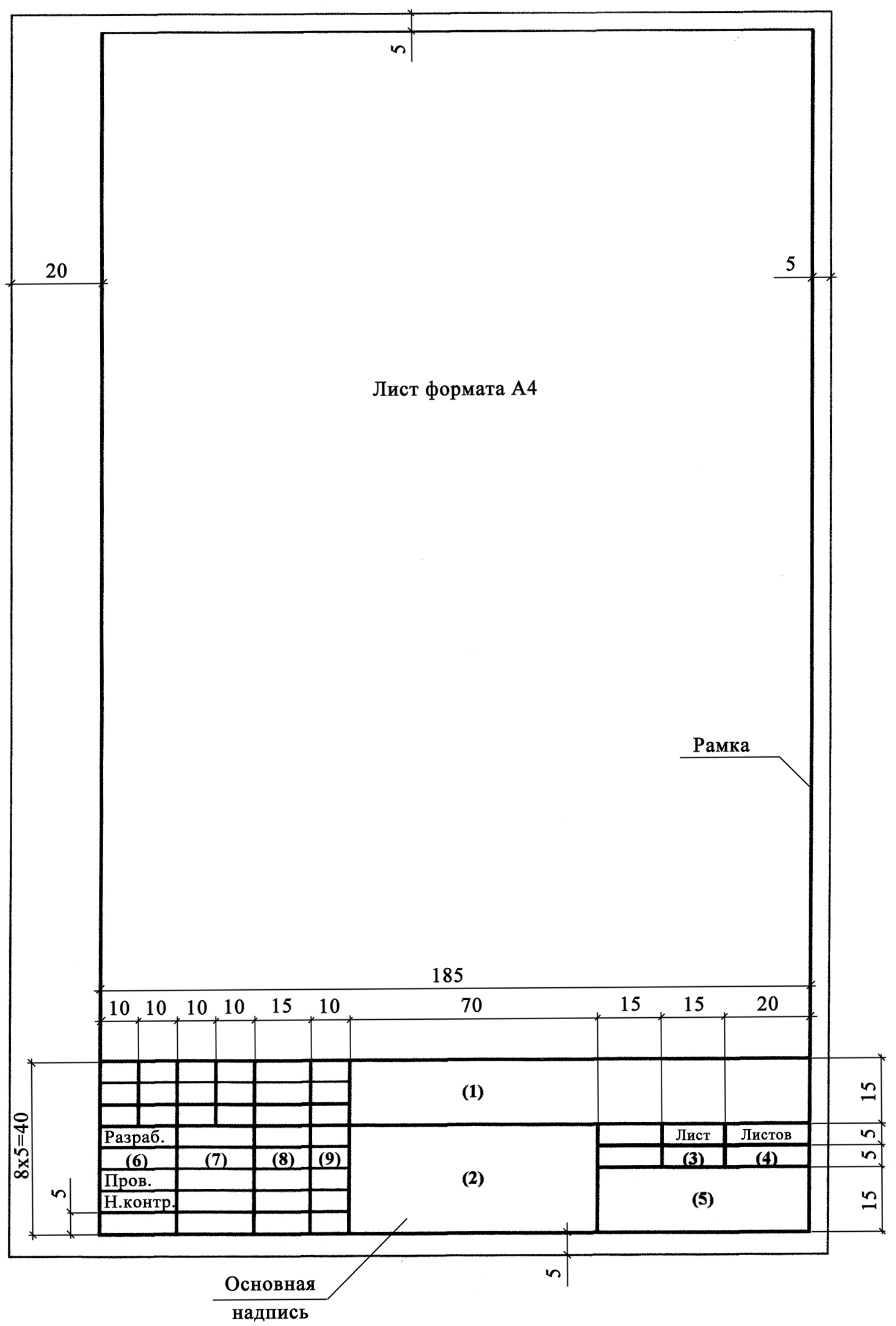
Рамка для дипломной работы
Рамка чаще всего требуется для проектов тех студентов, кто учится на инженерных и технических факультетах. При их оформлении в дипломной работе следует руководствоваться ГОСТом 2.301-68. Согласно нему, в штампе должны присутствовать следующие отступы: от левого края – 20 мм, по остальным – 5 мм. Толщина рамки – 1 мм.
При этом у студента есть выбор: можно как самому сделать ее в программе Word через вкладку «Параметры страницы», так и скачать готовый шаблон в PowerPoint в интернете. Первый вариант сложнее и требует временных затрат. Во втором случае удастся сэкономить драгоценное время и силы, ведь такие рамки созданы согласно государственным стандартам, их можно изменять и подстраивать под любой лист – от А4 до А1.
Если же вы решили создать штамп самостоятельно, то не забудьте:
-
после рамки перейти к колонтитулам;
-
вставить таблицу с достаточным количеством ячеек;
-
отредактировать образец в соответствии с требованиями вуза.

Обзор литературных источников в дипломной работе: пример
Обзор литературных источников указывает на степень изученности темы и является одной из важных частей во введении не только к диплому, но и к магистерской диссертации, кандидатской, автореферату, курсовой.
В общем виде это список тех авторов, которые занимались разработками рассматриваемой проблемы. При написании крайне важно придерживаться следующего алгоритма, что позволит облегчить процесс:
-
Внимательно и подробно изучите все источники.
-
Фиксируйте всю информацию по прочитанным статьям и книгам.
-
Авторов в списке располагайте согласно логике повествования.
-
Хронологический принцип станет лучшей основой. Он поможет показать, как менялся научный взгляд на вопрос с течением времени. Как вариант, можно сгруппировать издания и другие источники по темам.
-
К анализу материалов других авторов подходите с критической точки зрения, отмечайте плюсы и минусы.
-
В качестве заключительной части обзора можно высказать мысли относительно того, смогли ли исследователи достичь поставленных задач.
Подробно изучая чужие труды, вы подготавливаете основу для своей ВКР, начинаете разбираться в особенностях и нюансах исследуемой проблемы.
Пример того, как выглядит обзор литературных источников при оформлении дипломной работы:
При написании были использованы научная и учебно-методическая литература, статьи в периодических изданиях Республики Беларусь и Российской Федерации, нормативно-законодательные акты Республики Беларусь.
Основными источниками, раскрывающими теоретические основы мотивационного механизма, явились работы Герчиковой И.Н., Гончарова В.И., Веснина В.Р., Гапоненко А.Л., Кибанова А.Я., Хедоури М., Янчевского В. Г. В данных источниках подробно рассмотрено понятие и место мотивации в структуре управления организацией, виды мотивов и потребностей.
На основе работ «Менеджмент» Гончарова В.И., «Психология менеджмента» Карпова А.В., «Основы управления персоналом» Кибанова А.Я., «Основы менеджмента» Мескона М.Х., Альберта М. и Хедоури Ф., «Модели и методы управления персоналом» Моргунова Е.Б., «Теория менеджмента: от тейлоризма до японизации» Шелдрейка Дж. подробно рассмотрены теории мотивации, их состав, генезис, область применения в управлении организации.
Как правильно оформлять список литературы в дипломной работе
Не стоит забывать, что многие преподаватели внимательно ознакамливаются с первоисточниками, по которым нужно было написать исследование, и тем, как они оформлены. Нюансы составления библиографического перечня указаны в таких стандартах, как:
-
7.80-2000 – здесь можно узнать о требованиях к заголовкам и общему описанию первоисточников.
-
7.82-2001 – ГОСТ посвящен тому, как упоминать электронные ресурсы;
-
7.05-2008 – прописаны общие правила, касающиеся ссылок на библиографию.
При размещении литературы придерживаются алфавитного порядка и следующей последовательности:
-
нормативные акты, законы;
-
научные издания, справочники, учебные пособия;
-
литература на иностранном языке;
-
электронные ресурсы.
Все они должны быть современными (не старше 4 лет), полностью соответствовать вашей теме, а основной акцент делается на научные статьи и монографии – учебных пособий должно быть не более 30 % от всего проекта. При этом должно быть изучено не менее 30 источников, а часто это цифра доходит и до 50-60.
Поскольку основой библиографии являются книги, их описание включает:
-
Данные о написавшем авторе.
-
Наименование издания.
-
Тип. Это может быть сборник, хрестоматия, учебное пособие и др.
-
Данные с указанием составителей и редакторов, города, издательства, года и количества листов.
Образец оформления в дипломной работе выглядит следующим образом:
Маковский Т. Т. Теория вероятности : учеб. пособие – М.: изд-во Прорвёмся, 2018.– 555 с.
Свои нюансы также есть и при размещении журнальных статей. Все авторы прописываются так же, как и для книг. После заголовка нужно поставить 2 косые линии и привести название журнала, дату и номер публикации, а также страницы, на которых находится статья. При упоминании сайтов, помимо общей информации, необходимо прописать ссылку на них и дату обращения.

Переплет дипломных работ
Финальным этапом подготовки ВКР является ее переплет. Он может быть твердым и мягким. Чаще всего университеты требуют именно жесткий книжный формат в три дырки. Он достаточно основательный: на форзаце прикрепляются карманы или конверты для вкладышей, аннотаций, отзывов и рецензий. Мягкий же переплет дешевле, может быть сделан с пружиной или спиралью.
При прошивке не упустите тот факт, что дипломная часто выполняется в 3 экземплярах: один в твердом переплете – он предназначен для комиссии и будет затем храниться в архиве учебного заведения, а два оставшихся – в мягком: для кафедры с целью получения рецензии и для самого студента.
